
TRIESTERSTRASSE 5
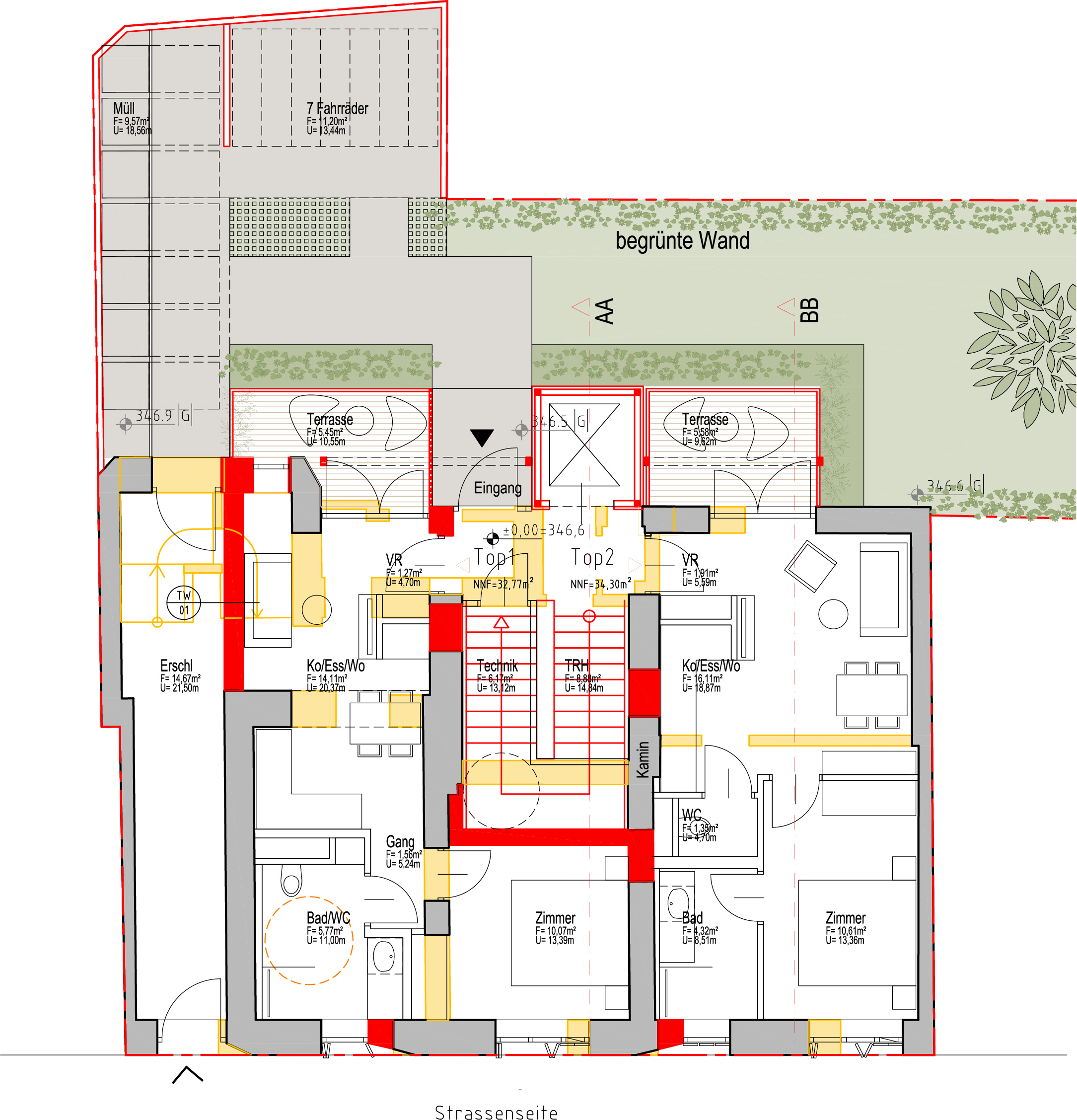
Das Projekt umfasst die umfassende Sanierung, den Umbau und die Aufstockung eines Bestandsgebäudes zu einem Aktivhaus mit insgesamt sechs Wohneinheiten. Besonderes Augenmerk liegt auf der Begrünung der Hofmauer und der vollständigen Nutzung des Daches als Photovoltaik-Anlage, wodurch das Gebäude mehr Energie produziert, als es verbraucht. Das Projekt vereint nachhaltige Architektur, regenerative Konzepte und innovative Bauweisen und demonstriert die Fähigkeit, komplexe Bauaufgaben interdisziplinär zu gestalten und umzusetzen.
ARGE AiR Architecture initiates Regeneration & GSarchitects
Projektteam: Danijela Gojic, Andrea Redi, Leo Fuchs, Anci Bosnjak
Projekt
umfassende Sanierung
Projektgröße
505 m²
Auftraggeber
IMVEA Immoblien GmbH
Projektstatus
in Planung, 2022-laufend


WEITERE PROJEKTE: ADAPTIVE & REUSE

Kaiserfeldgasse 7
8010 Graz | Austria